Dieses Objekt wurde bereits erfolgreich vermittelt.
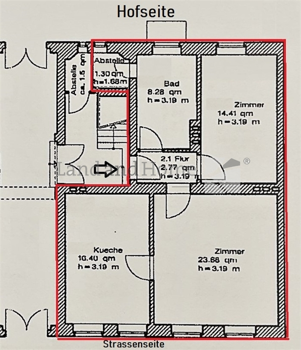
Verkauft wird eine hübsche und gepflegte 2-Zimmer Altbauwohnung mit großem tagesbelichteten Wannenbad/WC, geräumiger Essküche, gelegen im Hochparterre des dreigeschossigen Vorderhauses mit insgesamt 6 Wohnungen. Die Eigentümergemeinschaft umfasst insgesamt 9 Wohnungen die sich neben dem Vorderhaus auf Seitenflügel und Gartenhaus verteilen. Sie sind Teil einer in der Gründerzeit um ca.1896 errichteten Wohnbebauung.
Die vermietete Wohnung wurde Ende der 1990er Jahre modernisiert. Sie besticht durch den kompakten Grundriss, die Großzügigkeit und eine anspruchsvolle Deckenhöhe, die optimale Lichtverhältnisse gewährleistet. In die Wohnung gelangt man bequem über den Toreingang des Gebäudes.
Die geräumigen und optimal geschnittenen Zimmer sind zu beiden Seiten des Gebäudes ausgerichtet. Sie beeindrucken durch klare Linien und ihre großen Fenster. Alle Räumlichkeiten sind vom zentralen Flur aus, zu begehen. Für genügend Stauraum sorgen eine kleine Kammer in der Wohnung (mit Zutritt über das Bad) sowie ein großer Kellerraum.
Nachfolgend können Sie einige Ausstattungs- und Baubeschreibungsmerkmale der Eigentumswohnung entnehmen:
Die Nettokaltmiete beträgt mtl.: EUR ca. 505,-- . Die Nebenkostenvorauszahlungen (Betriebskosten) betragen EUR 118,--. Das monatliche Wohngeld beträgt EUR 270,--.
Der Mietvertrag besteht seit Februar 2011.
Hinweis: Die Wohnung wird im qualifizierten Alleinauftrag angeboten! Sie ist vermietet und wird ausschließlich als Kapitalanlage veräußert. Der Erwerber übernimmt das bestehende Mietverhältnis. Fragen dazu beantworten wir Ihnen auf Nachfrage.
Quellangabe Karte: © Open StreetMaps und Mitwirkende, CC-BY-SA
Alle Angaben basieren auf Informationen Dritter. Für die Richtigkeit und Vollständigkeit der Angaben übernehmen wir keine Gewähr.
Das Verkaufsobjekt liegt im Bereich einer weitgehend geschlossenen Gründerzeitbebauung des Berliner Ortsteils Friedrichshagen. Ob Goldmannpark, Kurpark oder Müggelsee, die unmittelbare Umgebung lädt zur Erholung und Freizeitgestaltung ein.
Der Standort selbst bietet eine hervorragende Infrastruktur an. Neben einer Vielzahl von Restaurants und Einkaufsmöglichkeiten in der nahegelegenen Bölschestraße sowie diversen Schulen ist die Anbindung an den öffentlichen Nahverkehr als ideal zu bezeichnen. Der S-Bahnhof Friedrichshagen oder die nächste Tram-Station sind fußläufig zu erreichen. Mit dem PKW gelangt man ebenso in wenigen Autominuten in die Köpenicker Altstadt oder ins nahegelegene Umland.
Die dargestellte Position der Immobilie ist nur eine ungefähre Angabe.